
中古住宅
中古住宅|伊万里市二里町中里甲

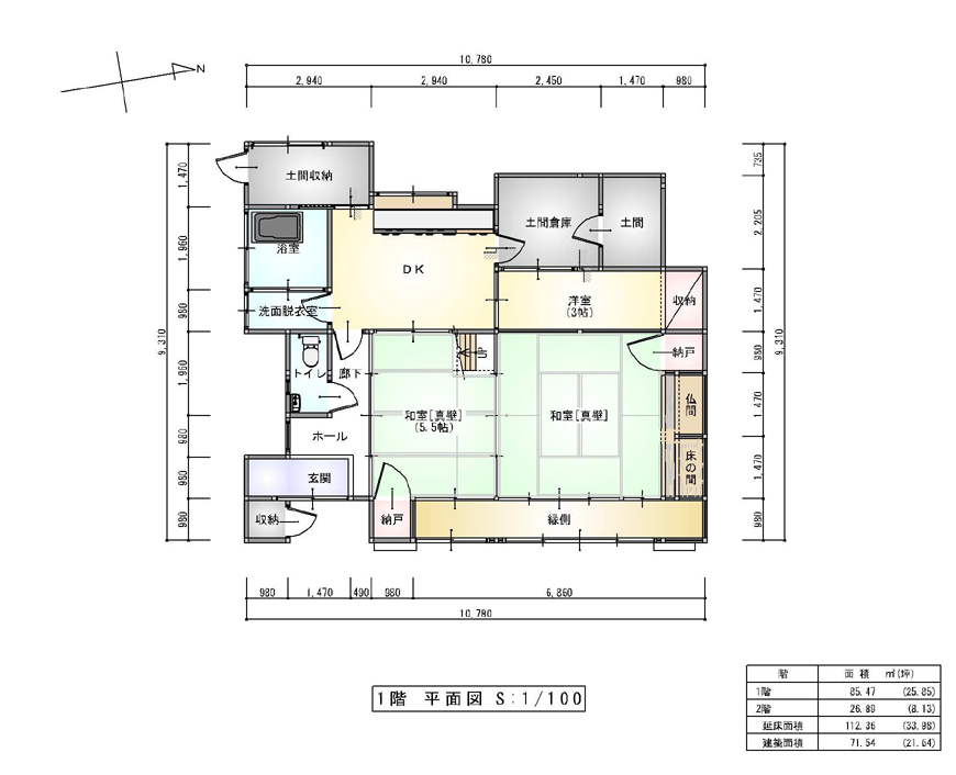
1F 平面図

2F 平面図
伊万里市 二里町中里甲
手を加えて育てていく住まいと、変える必要のない静けさ。この場所に、二つの良さが佇んでいます。
| 物件名 | 中古一戸建 | 伊万里市二里町中里甲 | ||
| 物件種目 | 中古一戸建住宅 | ||
| 最寄駅 | 松浦鉄道「金武駅」 | ||
| 間取タイプ | 5DK | ||
| 価格 | 400万円 [建物+土地] | ||
| 物件所有地 | 佐賀県伊万里市二里町中里甲1062-2 | ||
| 交通 | バス停「金武駅前」徒歩約14分 | ||
| 土地面積 | 公簿305.51㎡(約92.41坪) | 私道面積 (共有持分) | |
| 建物 | |||
| 構造・規模 | 木造2階建て | ||
| 面積 | 112.36㎡(約33.98坪) | ||
| 間取内訳 | 洋室 和室 DK 他 | ||
| 土地権利 | 所有権 | 地目 | 宅地 |
| 都市計画 | 非線引区域 | 用途地域 | 無指定 |
| 建ぺい率 | 60% | 容積率 | 200% |
| 築年月 | 昭和40年 6月 新築 | 駐車場 | 2台可 |
| 開発許可番号 | |||
| 接道状況 (角地・間口) | 接道:約17m 幅員:約4.m | ||
| 設備 | 電気 上下水道 ガス(プロパン) | ||
| 取引態様 | 仲介 | ||
| 備考 | ※建物は未登記です 。付属地有:畑(74㎡) 二里小学校まで徒歩約25分 中里保育園まで徒歩約23分 |
||



































