コンセプト
家づくり の流れ
家づくりの こだわり
WB工法 について
プラン
施工事例
新築
リフォーム リノベーション
店舗その他
パーツ別
お客様の声
会社概要
会社概要
代表挨拶
地域貢献
不動産
売地
中古住宅
賃貸住宅
イベント情報
イベント情報
ブログ
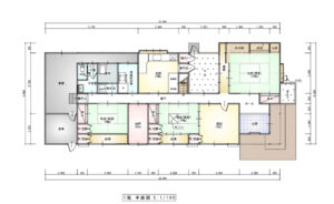
1F平面図
2025年03月27日
« Prev